



泵的使用和维护
首先泵与管道安装好后,不论是采用水压、气压,泵的进出口阀门一定要关闭,方可进行试压,以防损坏密封件,造成漏油。
1.开机准备
(1)清理现场,拧开轴承座螺丝,加入干净导热油作润滑油。110KW以上大油泵加注润滑油时由一孔注入直到另一孔有油溢出为止,在灌注过程中用手抚过联轴器,待孔内不再有气体冒出即可拧紧螺孔螺栓。
(2)检查电机转向是否与泵旋转方向一致。
(3)用手搬动联轴器泵应转动灵活。
(4)开车前应使用所输送的导热油将泵灌满,以驱除泵中空气,此时吐出口管道上R的闸阀应关闭。
(5)所输送的导热油在开车前要均匀加热,预热是利用被输送的导热油不断通过泵体进行的,应避免温度的剧烈波动,如有异常情 况,应立即停机检查。
预热标准:泵壳温度不得低于入口油温40℃,预热速度为50℃/ 小时,在开车预热时应将泵支架上的侧螺钉松开0.3-0.5亳米,预热完毕应拧紧螺钉。
(6)开车前应检查基础及螺栓有无松动,密封是否正常。
2.开机
(1)全面检查各项准备工作是否已经完善。
(2)打开各种仪表的开关。
(3)接通电源,当泵达到正常转速,且仪表显示出相当压力后,逐渐打开输出管路上的闸阀,并调节到需要工况。在输出管路上的闸阀关闭的情况下,泵连续工作不能超过3分钟。
(4)泵初始运行期间,把生产流程中的设备缓缓加热到100~130℃,并且保持在该温度下继续运行,脱水脱气到导热油中的水分完全蒸发,才把设备加热到操作温度。
(5)在机组初次投入使用,运行于工作状态之后(或实际试运行 3-4小时〉,应再次停机检查两联轴器同轴度是否发生变化,如有变动可仍然按上述机组的安装与检查中的规定来调节联轴器同轴度,直到符合要求且泵轴能用手轻松盘动时即可。
(6)开机过程中,要时时注意电动机的功率读数及振动情况,振动值不超过0.6毫米,如有异常应停车检查。
3.维护
(1)泵轴在前端设置有填料箱,密封性能较为可靠,同时在轴承座中设置有机械密封和油封装置,因此大量的泄漏不可能出现,而少量的泄漏可以通过泄漏管口排出接收。在开始运行初期有少量泄露是正常的,在经过一定时间密封面磨合后泄漏将会减少或停止。
(2)输送介质传到泵盖和轴承上的热量,由泵盖和轴承座的表面散热,使轴承座的温度适应于轴密封性能的温度。因此选择泵的安装位置时,要使泵盖和轴承座的热量便于扩散,不出现任何蓄热现象。
(3)轴承座中设置有两个球轴承,靠泵叶轮侧的一个球轴承用所输送的导热油润滑,靠联轴器侧的一个球轴承则用高温润滑脂润滑。
每个球轴承在运行3000小时之后,必须拆下用柴油清洗干净后,检查接触面是否损坏,如有损坏,必须换新的轴承。
靠叶轮侧的球轴承安装时,有防尘盖的一侧要朝向叶轮专 机前注入导热油润滑。
靠联轴器侧的球轴承,用复合钙基高温润滑脂(ZFG-4),该轴承重新安装时,有防尘盖的一侧同样要朝向叶轮侧安装,安装时充填润滑脂(约1/2球轴承与壳体的空间〉。
在轴承运行48小时后,要用润滑脂枪向轴承盖上的压注油杯注入补充润滑脂。
(4)不允许用输入管上的闸阀调节流量,避免产生气蚀。
(5)泵不宜低于30%设计流量下连续运转,如果必须在该条件下运转,则应在出口装旁通管,且使流量达到上述最小值以上。
(6)经常检查地脚螺栓的松动情况,泵壳温度与入口温度是否一致,出口压力表的波动情况和泵的振动情况。
(7)注意泵运行有无杂音,如发现异常状态时,应及时处理。
4.停机
(1)切断电源。
(2)将泵内液体放空,清洗且应定期把叶轮旋转180°以防止轴变形,直至泵体完全冷却为止。
泵的拆卸和装配
1.泵的拆卸顺序
(1)放净泵内液体及轴承托架内的润滑油。
(2)拧下电机固定螺栓,将电机搬离底座,拆下两半联轴器。
(3)拆下泵盖联接,松开轴承座托架螺栓,将泵盖连同轴承托架和转子部分一起从泵体内抽出。
(4)拧下叶轮螺母,拆下叶轮。
(5)拧下泵盖与轴承座螺栓,拆下泵盖。
(6)拧下右端轴承盖螺栓,拆去轴承盖。
(7)拆下轴承挡圈。
(8)将泵轴从轴承座中压出。
(9)将泵轴压出轴承和取下机械密封件动环和“O”形圈弹簧(不损坏,无须取下〉。
(10)在轴承座内压出静环“O”形圈。
2.泵的装配
泵的装配顺序可按拆卸相反顺序进行。拆卸后再装配时要检查机械密封件和各零件是否失效,如有失效损坏现象等发生,一定要换新的配件,安装时务必小心谨慎,不要敲打,以免损坏零件。
机组的安装和检查
1.泵安装的好坏对泵的平稳运行和使用寿命有很重要的影响,所以安装工作必须仔细地进行,不得草率行事。
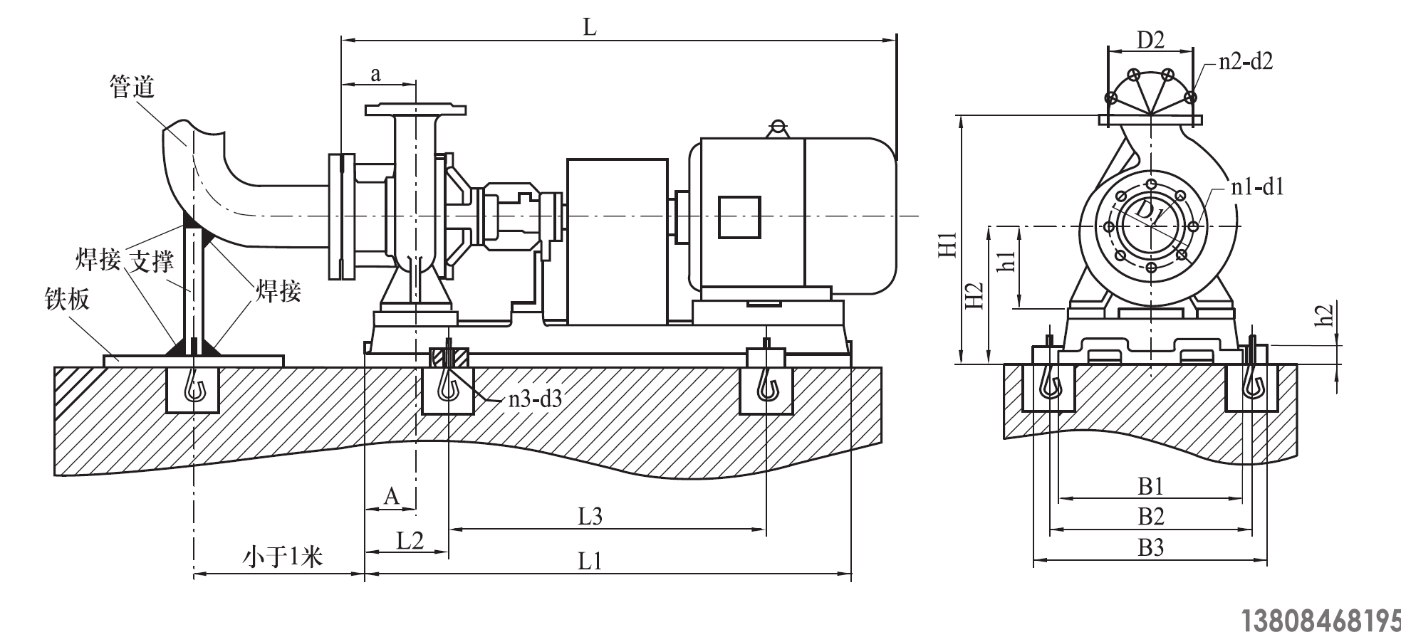
2.泵吸入管的安装高度、长度和管径应满足计算值,力求简短,管道弯头中心到泵底座头部距离一般应小于1米并有焊接铁板及支撑,见图1、图2、图3所示。
3.吸入和吐出管路也应有管架或支撑,泵不允许承受管路的负荷。
警告:管道上的热膨胀所产生的应力,如果传递到泵机上,会造成泵机变形,损坏联轴器和轴承以及泵轴等,所以在靠近泵体时,一定要进行支撑。
4.安装地点应足够宽敞,以方便检修工作和散热良好。
5. 安装顺序:
(1)将机组放在埋有地脚螺栓的基础上,在底座与基础之间放成对垫,作找正用。
(2)松开联轴器,用水平仪分别放在泵轴和底座上,通过调整楔块垫使机组调整至水平,适当拧紧地脚螺栓,以防走动。
(3)用混凝土灌注底座和地脚螺栓孔。
(4)待混凝土干固后,检查底座和地脚螺栓是否有不良或松动等现象,检查合格后应拧紧地脚螺栓,并重新检查泵的水平度。
(5)校正泵轴和电机轴的同轴度,用验平尺检验时在联轴器外圆上的圆跳动不得超过0.1毫米,两联轴器平面间的间隙应保证在2~3 毫米之间,通过验平尺相差90°对联轴器进行校验时另一方向的圆跳动也不得超过0.1毫米,调节时一般相对于泵来调节电机,可用平板垫的垫入方法来调整联轴器的同轴度。
(6)在接好管路及确定原动机转动方向后,再接上联轴器,并再校核一遍联轴器外圆的同轴度。
注意:联轴器不同心时,会造成联轴器及弹性块磨损过大,也会导致轴承和轴封的损坏,以及泵轴折断。同轴度达不到安装要求严禁开车。
(7)在安装过程中为防止杂物落入机器内,应将机组所有孔眼均盖好。
(8)泵在开启前应对进出管道进行清洗,特别是对于焊接式管道应注重处理毛刺和焊渣及氧化皮,在泵的进口段需加上过滤器,以防杂物进入泵内。
Pump usage and maintenance:
Firstly, after the pump and pipeline are installed, whether using water pressure or air pressure, the inlet and outlet valves of the pump must be closed before pressure testing to prevent damage to the sealing parts and oil leakage.
1. Preparation before start-up:
(1) Clean the site, loosen the bearing seat screws, and add clean heat transfer oil as lubricating oil. For oil pumps above 110KW, lubricating oil is injected from one hole until oil overflows from another hole. During the filling process, stroke the coupling with your hand until no gas escapes from the hole, then tighten the screw bolt.
(2) Check whether the motor rotation direction is consistent with the pump rotation direction.
(3) Move the coupling pump by hand to ensure flexibility.
(4) Before starting, fill the pump with the heat transfer oil to be transported to remove the air in the pump. At this time, the gate valve R on the outlet pipeline should be closed.
(5) The heat transfer oil to be transported should be evenly heated before starting. Preheating is carried out by continuously passing the heat transfer oil to be transported through the pump body, and temperature fluctuations should be avoided. If there is an abnormal situation, stop immediately for inspection.
Preheating standard: The pump casing temperature should not be lower than the inlet oil temperature of 40℃, and the preheating speed should be 50℃/hour. During preheating, loosen the side screws on the pump bracket by 0.3-0.5 mm. After preheating, tighten the screws.
(6) Before starting, check whether the foundation and bolts are loose and whether the sealing is normal.
2. Start-up:
(1) Check whether all preparations have been completed.
(2) Turn on the switches of various instruments.
(3) Turn on the power supply. When the pump reaches normal speed and the instrument displays a corresponding pressure, gradually open the gate valve on the output pipeline and adjust it to the required working condition. The pump cannot work continuously for more than 3 minutes with the gate valve on the output pipeline closed.
(4) During the initial operation of the pump, slowly heat up the equipment in the production process to 100-130℃ and keep it running at this temperature. Dehydration and degassing of water in the heat transfer oil should be completely evaporated before heating the equipment to the operating temperature.
(5) After the unit is put into use and runs in working condition (or actual trial operation for 3-4 hours), stop again to check whether the coaxiality of the two couplings has changed. If there is a change, adjust the coaxiality of the couplings according to the installation and inspection requirements of the unit until it meets the requirements and the pump shaft can be easily rotated by hand.
(6) During start-up, always pay attention to the power reading and vibration of the motor. The vibration value should not exceed 0.6 mm. If there is an abnormal situation, stop for inspection.
3. Maintenance:
(1) The pump shaft is equipped with a stuffing box at the front end, which has reliable sealing performance. At the same time, there are mechanical seal and oil seal devices in the bearing seat. Therefore, a large amount of leakage cannot occur, and a small amount of leakage can be discharged through the leak pipe. A small amount of leakage at the beginning of operation is normal. After a certain period of time, when the sealing surface is worn in, leakage will decrease or stop.
(2) The heat transmitted by the conveyed medium to the pump cover and bearing is dissipated by the surface of the pump cover and bearing seat, so that the temperature of the bearing seat adapts to the temperature of shaft sealing performance. Therefore, when choosing a pump installation position, make sure that heat dissipation from the pump cover and bearing seat is easy and that no heat storage occurs.
(3) Two ball bearings are installed in the bearing seat, with one ball bearing adjacent to the impeller lubricated with heat transfer oil, and another ball bearing adjacent to the coupling lubricated with high-temperature grease.
After each ball bearing has been running for 3000 hours, it must be removed and cleaned with diesel oil to check whether there is any damage to its contact surface. If there is damage, a new bearing must be replaced.
When installing a ball bearing adjacent to an impeller, make sure that one side of its dust cover faces toward the impeller.